防火窗,是新時代下經濟生活的安全屏障。大家對防火窗有了解嗎?國家不斷出臺相關規定政策法規來定義防火窗,致使業主對這種功能性的窗認識越來越多,需求也變得越來越大。下面由小編帶領大家一起深入了解甲級防火窗及其設計應用。
甲級防火窗的定義:
防火窗,是指用鋼窗框、鋼窗扇或耐高溫材料做成的窗并在窗框窗扇骨架內填充不燃材料,并配以防火玻璃及五金件所組成能滿足相應等級要求的耐火完整性和隔熱性窗。
根據國家標準《防火窗》GB16809-2008:

甲級防火窗的防火性能與防火等級的規定:
耐火隔熱性≥1.50h,且耐火完整性≥1.50h的防火窗屬于A類1.50小時(甲級);
僅保持耐火完整性≥1.50h的防火窗屬于C類耐火窗。
甲級防火窗屬于國家強制性認證3C產品,必須在國家強制性產品認證通過之后才能進行生產、銷售和使用。
而甲級防火窗的分類,按其窗框和窗扇框架的主要材料可分:甲級鋼質防火窗、甲級木質防火窗、甲級鋼木復合防火窗以及其他材質防火窗;按開啟方式可分:甲級活動式防火窗,甲級固定式防火窗。
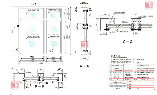
關于甲級防火窗的型號編制,見下圖:

以防火窗型號GFC 1518-D-A1.50為例,GFC表示鋼質防火窗,規格型號為1518(即洞口標志寬度1500mm,標志高度1800mm),使用功能為固定式,耐火等級為A1.50(即耐火完整性時間不小于1.50h)。
下面是甲級防火窗結構節點圖:

甲級防火窗由窗框、窗扇、復合隔熱型防火玻璃、防火門閉門器、自動滅火系統用玻璃球、防火合頁、拉手等組成。以甲級防火窗GFC 1518-D-A1.50(甲級)為例,其窗框采用1.2mm厚冷軋鍍鋅鋼板制成,窗框內澆筑水泥砂漿。窗框中部橫、豎框內填充珍珠巖防火門芯板;其隔熱型防火玻璃由兩層5mm浮法玻璃夾一層中空層內填充16mm防火液復合而成,防火玻璃總厚度26mm;窗扇防火玻璃受火面設玻璃壓條,壓條與窗框、窗扇之間均用M4*35mm自攻螺釘連接固定,螺釘間距200mm-300mm。防火玻璃與窗框及壓條之間間隙處均設防火膨脹密封封條,受火面及背火面防火玻璃四周填塞玻璃膠。
經過測試,恒保甲級防火窗GFC 1518-D-A1.50(甲級)鋼制防火窗耐火性能為1.50h,背火面平均溫升134℃,最高溫升171℃,符合規定的A1.50(甲級)耐火時間要求;其余檢驗項目均合格,是滿足甲級防火窗檢測要求的合格產品。
甲級防火窗的使用場所:
根據建筑設計防火規范-民用建筑:
1、兩座建筑相鄰較高一面外墻為防火墻;相鄰兩座高度相同的一、二級耐火等級建筑中相鄰任一側外墻為防火墻;高出相鄰較低一座一、二級耐火等級建筑的屋面15m及以下范圍內的開口部位設置甲級防火門、窗。[1]
2、中庭與周圍連通空間的隔墻與周圍連通空間應進行防火分隔:采用防火隔墻時,其耐火極限不應低于1.00h;采用防火玻璃墻時,其耐火隔熱性和耐火完整性不應低于1.00h,采用耐火完整性不低于1.00h的非隔熱性防火玻璃墻時,應設置自動噴水滅火系統進行保護;采用防火卷簾時,耐火極限不應低于3.00h;與中庭相連通的門、窗,應采用火災時能自行關閉的甲級防火門、窗。[1]
3、鍋爐房、變壓器室等與其他部位之間應采用耐火極限不低于2.00h的防火隔墻和1.50h的不燃性樓板分隔。 在隔墻和樓板上不應開設洞口,確需在隔墻上設置門、窗時,應采用甲級防火門、窗。[1]
4、設備控制室、精密儀器存放室、地鐵車站內的行車值班室或車站控制室、變電所、配電室、通信及信號機房、通風和空調機房、消防水泵房、滅火劑鋼瓶室等重要設備用房甲級觀察窗,或隔墻上的門及窗需采用甲級防火門窗的防火分區。[2]
因為甲級防火窗產品必須具有國家CCCF認證標志才是合格品,那么目前市面上有哪些規格型號的甲級防火窗供業主、施工單位選購呢?其中鶴山市恒保防火玻璃廠有限公司作為專業的甲級防火窗生產廠家提供以下優質甲級防火窗(咨詢電話 13828027016):

恒保甲級防火窗型號
作為一家擁有21年防火玻璃研究與生產經驗的鶴山市恒保防火玻璃廠有限公司,已為您深入講解了甲級防火窗及其設計應用,若有疑問歡迎留言或致電:13828027016,恒保公司將會為您一一解答!
文章原創自:鶴山市防火玻璃廠有限公司—http://www.hbglass.net/index.html