2019/10/17 16:01:33 4297019
鶴山市恒保防火玻璃廠有限公司以自身21年生產與研究防火玻璃、防火玻璃門窗系統以及構件等科研經驗,不斷更新推出新產品,從63#型耐火窗到2019年7月31日上懸式耐火窗通過主型產品的型式試驗(于國家消防產品質量監督檢驗中心(廣東)正式批出)。
2019/10/17 16:01:28 4296919
鶴山市恒保防火玻璃廠有限公司以自身21年生產與研究防火玻璃、防火玻璃門窗系統以及構件等科研經驗,不斷更新推出新產品,從63#型耐火窗到2019年7月31日上懸式耐火窗通過主型產品的型式試驗(于國家消防產品質量監督檢驗中心(廣東)正式批出)。
2019/10/16 14:12:15 4296819
消防聯動型防火窗屬于活動式防火窗,這種防火窗相較于固定式防火窗復雜,是防火分區和防火隔斷重要的消防設備。消防聯動型防火窗綜合了機械、電器、感應設備等,是一種較為復雜的設備,因此在裝置和運用過程中要運用專用設備,組織具有電工、機械知識的專業人員。 在防火窗操作過程中,操作人員要注意以下幾點: 1、不得擅自離開操作地址,密切關注防火窗工作情況,并做具體記載。在防火窗封閉過程中,制止有任何攪擾的
2019/12/28 15:20:02 4296719
流亡間防火窗是設置在54米以上建筑中具有保溫節能,耐火完整性抵達1小時的防火設備。 根據建筑設計防火規范要求,流亡間防火門窗有必要抵達乙流亡間防火窗是設置在54米以上建筑中具有保溫節能,耐火完整性抵達1小時的防火設備。 根據建筑設計防火規范要求,流亡間防火門窗有必要抵達乙級防火要求,依照耐火極限時刻規矩,盡管傳統隔熱型防火窗完全能夠抵達相關規范,但作為民用建筑其氣密性、水密性及隔聲作用無法
2019/12/26 16:08:50 4296619
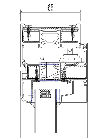
鋼鋁復合非隔熱型防火窗(鋁包鋼耐火窗),采用外層為鋁合金型材,內層為鋼型材的設計方法,既有鋼材受火時的骨架作用,又有鋁型材的靚麗外觀。是現今市面上能媲美各大建筑耐火完整性外窗的優質產品。\r\n恒保鋁包鋼耐火窗產品結構(詳詢致電:13828027016)。
2019/10/9 9:35:45 4296519
一般要求 \r\n\r\n1. 設置在建筑內經常有人通行處的防火門宜采用常開防火門。常開防火門應能在火災時自行關閉,并應具有信號反饋的功能。\r\n\r\n2. 除允許設置常開防火門的位置外,其他位置的防火門均應采用常閉防火門。常閉防火門應在其明顯位置設置“保持防火門關閉”等提示標識。\r\n\r\n3. 除管井檢修門和住宅的戶門外,防火門應具有自行關閉功能。雙扇防火門應具有按順序自行關閉的功能。\r\n\r\n4. 除另有規定外,防火門應能在其內外兩側手動開啟。\r\n\r\n5. 人員密集場所內平時需要控制人員隨意出入的疏散門和設置門禁系統的住宅、宿舍、公寓建筑的外門,應保證火災時不需使用鑰匙等任何工具即能從內部易于打開,并應在顯著位置設置具有使用提示的標識\r\n\r\n6. 設置在建筑變形縫附近時,防火門應設置在樓層較多的一側,并應保證防火門開啟時門扇不跨越變形縫。\r\n\r\n7. 防火門關閉后應具有防煙性能。
2019/10/7 18:08:49 4296419
在咱們的生活中不可避免會發作一些意外,火災是一種十分常見的災害,會形成大面積的傷亡以及產業的丟失,所以在生活中如何防火十分重要。運用防火玻璃也可以使得咱們的人身安全和產業安全得到保障。它具有很好的防火性,所以當發作火災時可以將火災限定在必定范圍內,防止火災發作延伸,下面簡略介紹一下弧形防火玻璃。 弧形防火玻璃的特色 1、優勝的耐火功能 咱們都知道,防火玻璃門之所以能防火,肯定是因為這種玻
2019/9/27 16:04:23 4296219
鶴山市恒保防火玻璃?廠有限公司以自身21年生產與研究防火玻璃、防火玻璃門窗系統以及構件等科研經驗,不斷更新推出新產品,從63#型耐火窗到2019年7月31日上懸式耐火窗通過主型產品的型式試驗(于國家消防產品質量監督檢驗中心(廣東)正式批出)。
2019/9/25 15:02:06 4296119
防火玻璃窗應用于高層住宅、商業寫字樓等不同類型的修建中,是現代不行缺少的防火隔煙產品,可到達阻燃、防火、避免煙霧分散的效果。防火玻璃窗功用具有多樣性,既可是日常運用的普通窗戶,也可是關鍵時刻的耐火窗。 防火玻璃門大小的視點來講可說是大很多個尺度的防火玻璃窗,這僅僅形象的了解,但兩者仍是有很大區別的。防火玻璃門同樣是不行多得的防火隔煙產品,可用于機場、地鐵、商業修建、機房設備間、實驗室等場所,